Ce site est protégé par reCAPTCHA Enterprise et les règles de confidentialité et les conditions d'utilisation de Google s'appliquent.


Un chalet superbement conçu alliant charme alpin et efficacité énergétique de pointe — une rare pépite classée A à Samoëns.
Lexie Starling - Shane Cunningham agents d’Alpine Property pour SamöensEn bref
Chalet Vers La Ville
- Prix
- 845 000 €uros
- Statut
- A VENDRE
- Dernière mise à jour
- 18/10/2025
- Région
- Grand Massif
- Localité
- Samoëns & Vallée
- Village
- Samoëns
- Chambres
- 4
- Salles de bain
- 4
- Surface
- 140 m²
- Surface du terrain
- 460 m²
- Indépendant(e)
- Oui
- Chauffage
- Pompe à chaleur
- Cheminée
- Poêle à bois
- Accès aux pistes
- Navette
- Pistes les plus proches
- 1.3 km
- Commerces les plus proches
- 600 m
- Jardin
- Oui
- Garage
- Parking couvert
- Drainage
- Tout-à-l'égout
- Honoraires de l'agence
- A la charge du vendeur
Emplacement
Rechercher sur la carteDescription
Situé à quelques minutes à pied du centre de Samoëns, ce chalet neuf de quatre chambres a été construit par des artisans locaux selon les plus hauts standards de qualité. Alliant le charme traditionnel de l’architecture alpine à une ingénierie moderne d’exception et à un design écologique, il atteint une remarquable performance énergétique de niveau A — un résultat exceptionnellement rare pour une propriété de montagne située à 700 m d’altitude. Cette efficacité exceptionnelle reflète la qualité supérieure de la construction, de l’isolation et du choix des matériaux haut de gamme, garantissant un confort optimal toute l’année et une consommation énergétique minimale. Le chalet est également équipé d’un système de ventilation mécanique avec récupération de chaleur, renforçant encore ses performances thermiques et la qualité de l’air intérieur.
Offrant de vastes espaces répartis sur trois niveaux, le chalet est idéal pour une famille ou pour la location haut de gamme. Il bénéficie d’un accès aisé toute l’année, à un peu plus d’une heure de l’aéroport international de Genève, et jouit d’un emplacement parfait à proximité du domaine skiable du Grand Massif ainsi que de nombreux sentiers de randonnée et de VTT.
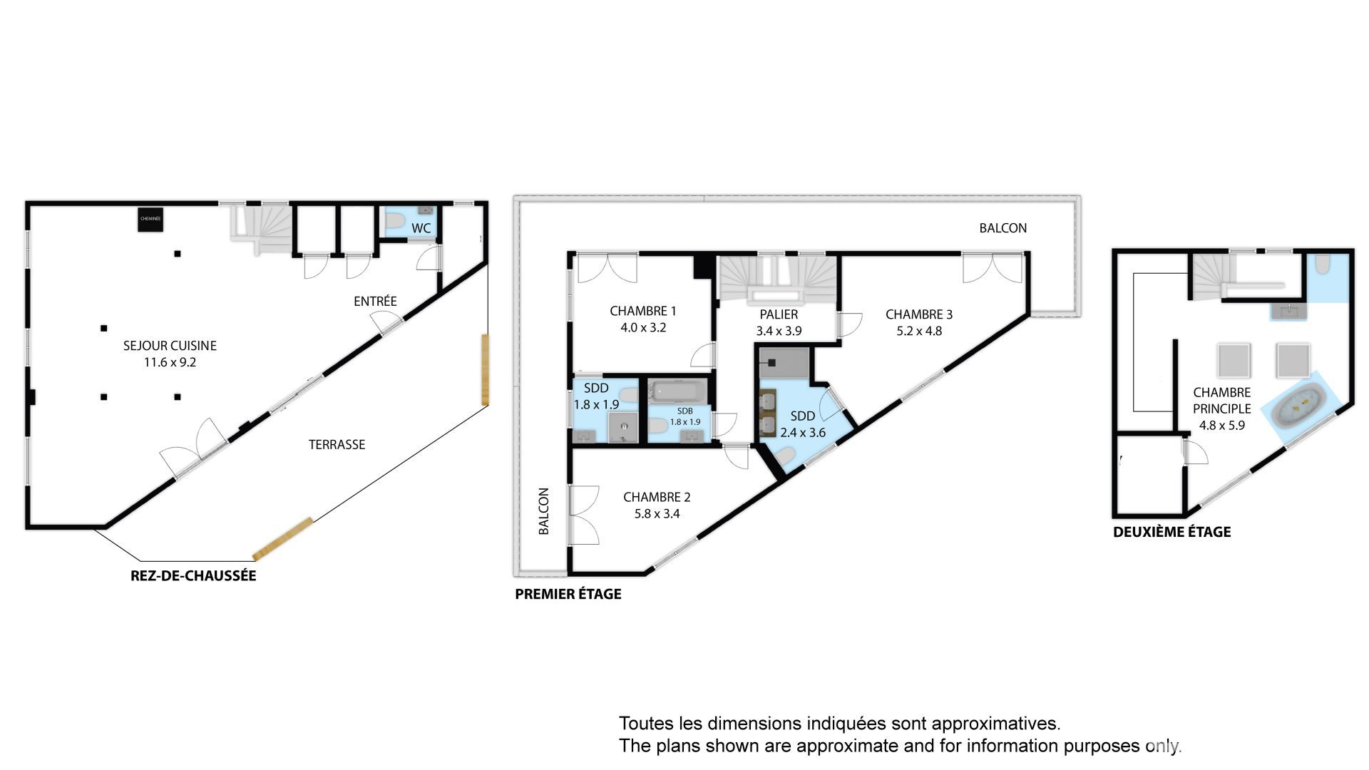
Le rez-de-chaussée s’ouvre sur un hall d’entrée accueillant menant à une vaste pièce de vie ouverte avec cheminée, espace repas et emplacement prévu pour la cuisine. La cuisine est vendue séparément, offrant aux acquéreurs la possibilité de choisir leur propre design et niveau de finition. Les propriétaires travaillent en étroite collaboration avec un cuisiniste local qui pourra proposer plusieurs options sur mesure, assurant un processus simple et sans contrainte pour les futurs acheteurs. Ce niveau comprend également un cellier, un local technique, un WC indépendant et un placard supplémentaire.
À l’étage, le premier niveau comprend une chambre double avec salle d’eau attenante, WC et balcon, une chambre triple avec balcon, une autre chambre double avec salle d’eau attenante, WC et balcon, ainsi qu’une salle de bains supplémentaire avec WC. Le dernier étage est entièrement dédié à une vaste suite parentale avec baignoire, lavabo, WC et rangements sous les combles.
À l’extérieur, le chalet offre une grande terrasse en bois, un petit jardin plat orienté est et nord, ainsi que trois places de stationnement. Pour la vente, les propriétaires réaliseront également un carport orienté ouest, offrant un stationnement couvert et un abri fermé sécurisé — idéal pour skis, vélos et autre matériel de montagne.
Avec sa rare performance énergétique A, sa qualité de construction exceptionnelle, son chauffage au sol alimenté par une pompe à chaleur air/eau et son système de ventilation à récupération de chaleur de pointe, ce chalet allie confort, efficacité écologique et praticité. Situé à seulement 50 m de l’arrêt de la navette gratuite pour les pistes, il représente une opportunité unique — que ce soit comme résidence alpine privée ou comme investissement locatif durable et performant — dans l’un des villages les plus recherchés des Alpes françaises.