Appt. A31, Les Balcons de la Bechigne - Appt. A31, Les Balcons de la Bechigne - Appt. A31, Les Balcons de la Bechigne -
Plus de photos
Appt. A31, Les Balcons de la Bechigne
1 520 000 €

Ce site est protégé par reCAPTCHA Enterprise et les règles de confidentialité et les conditions d'utilisation de Google s'appliquent.

Une occasion rare d’acheter un appartement neuf dans un petit immeuble de seulement cinq logements.

Ed Ockelton agent d’Alpine Property pour Châtel & Vallée

En bref

Appt. A31, Les Balcons de la Bechigne

Prix
1 520 000 €uros
Statut
A VENDRE
Dernière mise à jour
03/11/2025
Région
Portes Du Soleil
Localité
Châtel & Vallée
Village
Chatel
Chambres
5
Salles de bain
4
Surface
186 m²
Chauffage
Chauffage au sol
Pistes les plus proches
800 m
Commerces les plus proches
500 m
Garage
Simple
Drainage
Tout-à-l'égout
Nombre de Lots
5
Procédure en cours
Non
Honoraires de l'agence
A la charge du vendeur

Description

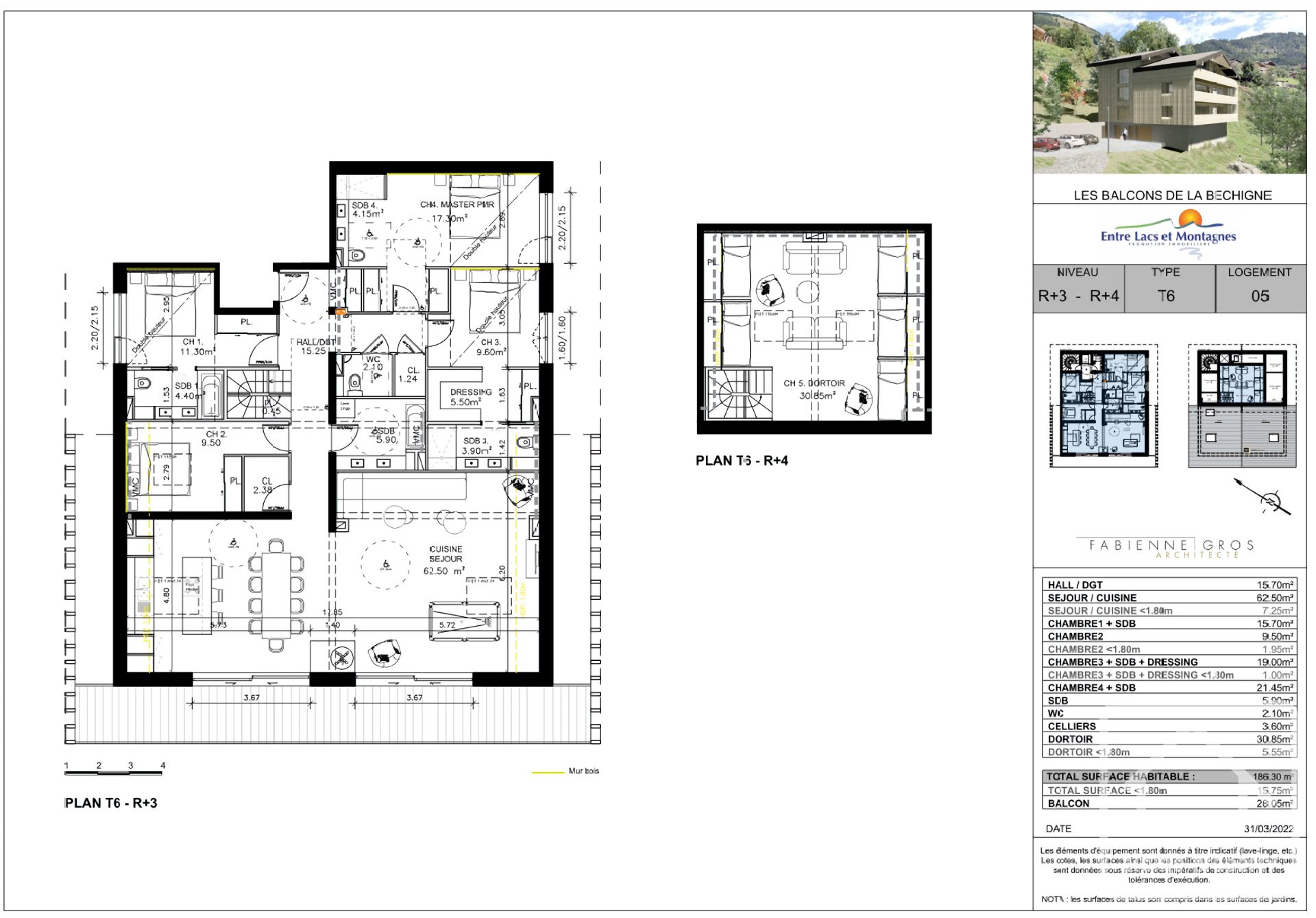
Les Balcons de la Bechigne est un projet de 5 appartements de haute qualité situés sur la Route du Bechigne, non loin du centre de Châtel.

Avec seulement 5 appartements dans le bâtiment, cette résidence offre un style chalet tout en bénéficiant de la commodité d’un appartement « lock-up and leave ».

Tous les appartements respecteront les dernières normes en matière d’efficacité énergétique, avec un système individuel de chauffage central au gaz par le sol et une production d’eau chaude à la demande.

L’appartement A31 (05), réparti sur les deux derniers étages, est un duplex de quatre chambres comprenant à l’étage un espace supplémentaire pouvant être utilisé comme second salon ou coin nuit. Il bénéficie d’une surface habitable de 186,00 m², d’un balcon de 28 m², d’un double garage et d’un casier à skis. Le prix total (garage et cuisine inclus) est de 1 520 000 €.

Le bâtiment est situé sur la Route du Bechigne, avec une vue dégagée et à seulement quelques minutes à pied du centre de Châtel.

La livraison est prévue pour la fin du troisième trimestre 2027.

Appt. A11, T3, 2 sdbs, plus couchette – 599,800€
Appt. A12, T4, 3 sdbs, plus couchette - 784,600€
Appt. A21, T3, 2 sdbs, plus couchette - 619,000€
Appt. A22, T4, 3 sdbs, plus couchette - 798,000€

Le bien est soumis au statut de la copropriété.

Lire la suite


LE QUARTIER de cet appartement

...

Vu récemment

...

Les informations sur les risques auxquels ce bien est exposé sont disponibles sur le site Géorisques : www.georisques.gouv.fr

Diagnostic de performance énergétiques (DPE)
logement très performant
consommation (énergie primaire)
0
kWh/㎡.an
émissions
0
kg CO2/
㎡.an
logement extrêmement consommateur d'énergie
passoire énergétique
Dont émissions de gaz à effet de serre
peu d'émissions de CO2
0 kg CO2/㎡.an
émissions de de CO2 trés importantes

Partager Appt. A31, Les Balcons de la Bechigne