La Clef des Champs, Appt. A2 - La Clef des Champs, Appt. A2 - La Clef des Champs, Appt. A2 -
Plus de photos
La Clef des Champs, Appt. A2
178 850 €

Ce site est protégé par reCAPTCHA Enterprise et les règles de confidentialité et les conditions d'utilisation de Google s'appliquent.

Une opportunité rare d’acquérir un bien alpin idéalement situé, offrant un excellent potentiel de personnalisation. Idéal comme résidence ou pour un investissement locatif.

Anna Allen - Clare Harvey agents d’Alpine Property pour Alpes du Léman

En bref

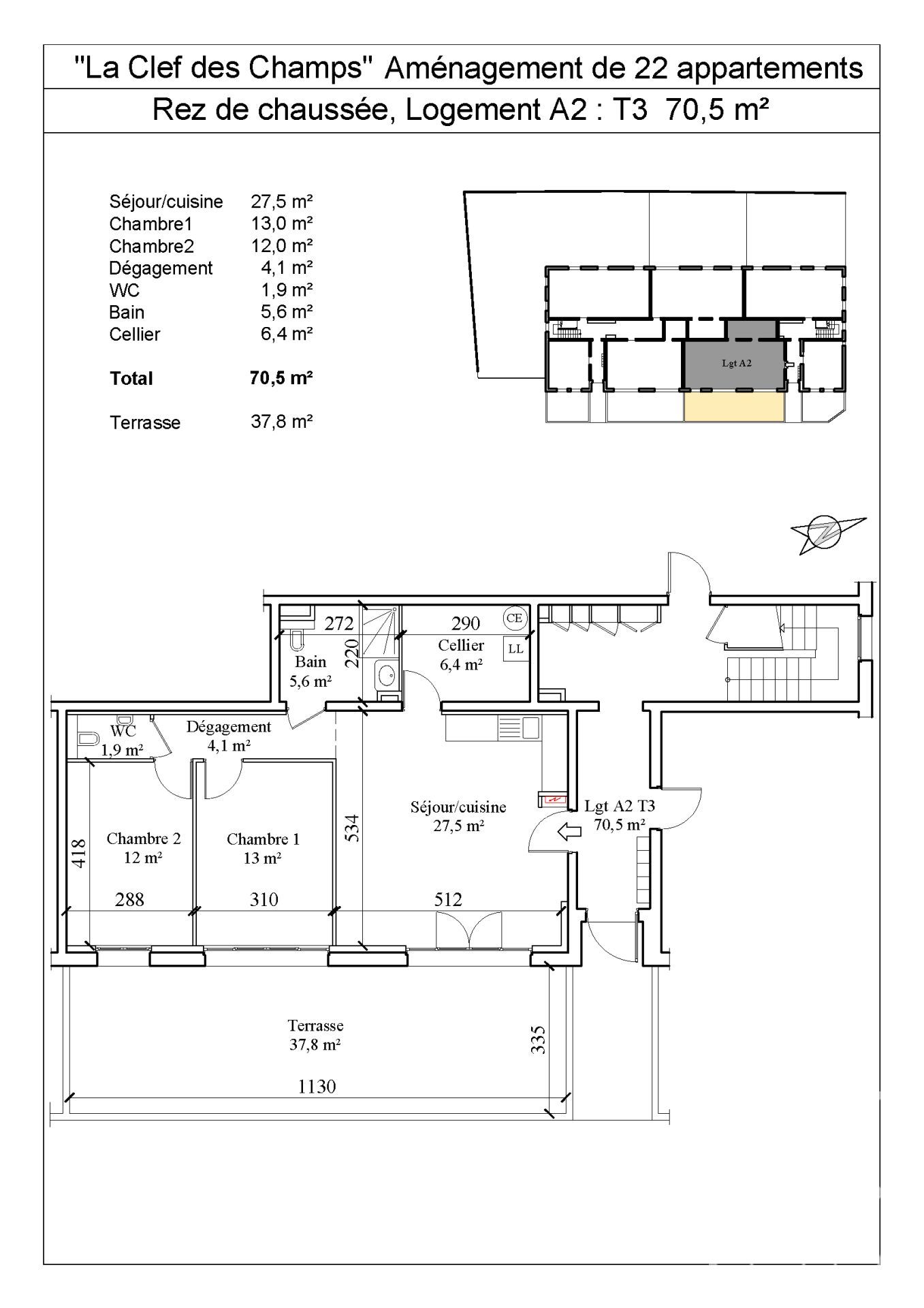
La Clef des Champs, Appt. A2

Prix
178 850 €uros
Statut
A VENDRE
Dernière mise à jour
22/04/2026
Région
Alpes du Léman
Localité
Vallée Du Risse
Village
Onnion
Chambres
2
Salles de bain
1
Surface
74.4 m²
Chauffage
Radiateurs électriques
Pistes les plus proches
700 m
Commerces les plus proches
1 km
Drainage
Tout-à-l'égout
Charges annuelles
550.00 €uros
Nombre de Lots
22
Procédure en cours
Non
Honoraires de l'agence
A la charge du vendeur

Description

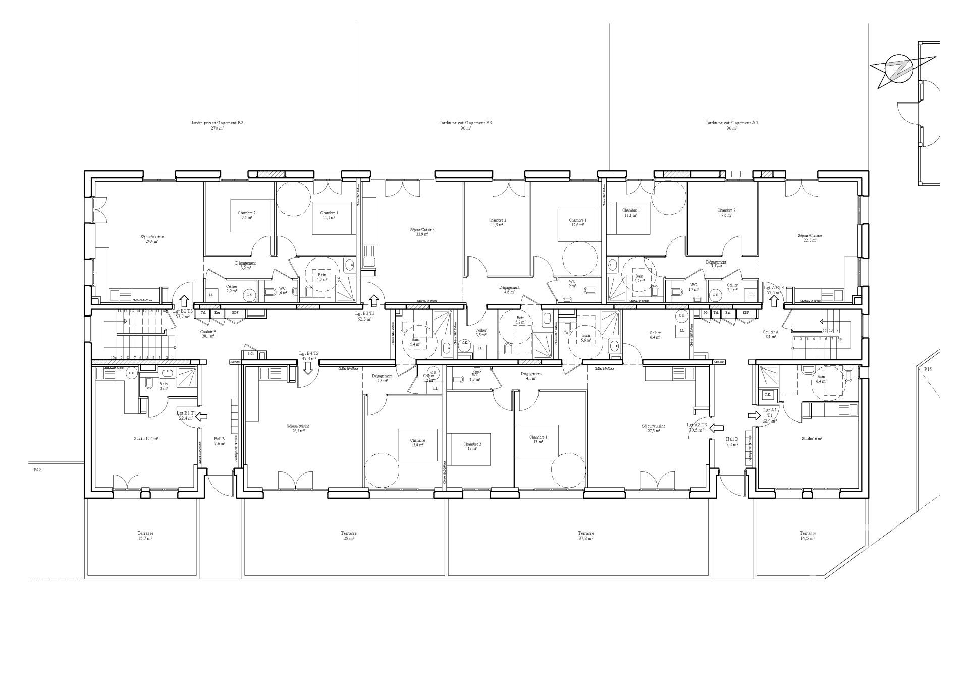
Lancement d’un nouveau programme immobilier à Onnion. Cette résidence est un bâtiment entièrement rénové comprenant 22 appartements spacieux, chacun doté d’une terrasse ou d’un jardin en rez-de-chaussée et d’un balcon à chaque étage.

La livraison est prévue pour le deuxième trimestre 2026.

Située à une altitude de 830 mètres et à 500 mètres du télésiège des Chenevières, donnant accès au domaine skiable des Brasses, La Clef des Champs surplombe le village d’Onnion, niché sur les hauteurs de Saint-Jeoire. À l’écart de toute circulation, la résidence offre un cadre de vie confortable et paisible, avec une vue imprenable sur le Mont Blanc, à 30 minutes de la Suisse et à 40 minutes du lac Léman.

Cet appartement est situé en rez-de-chaussée, exposé sud-est, avec une terrasse et une vue sur le Mont Blanc.

Options de finition
Les prix indiqués correspondent à l’achat de l’appartement en état brut avec travaux à réaliser par l’acquéreur. Une option clé en main (avec prix) peut être proposée sur demande. La surface habitable une fois terminé sera d’environ 70,50 m².

Terrain
L’immeuble est implanté sur un terrain de 3 800 m². Les terrains environnants étant agricoles, aucune construction supplémentaire ne pourra être réalisée.

Stationnement
La résidence propose une place de parking par appartement incluse dans le prix. Une deuxième place, sous réserve de disponibilité, peut être acquise pour 2 500 €.

Caves
Une annexe extérieure comprenant 12 espaces de stockage de 3 m² chacun sera construite côté nord du bâtiment. Ils sont disponibles à l’achat au prix de 5 000 €.

Ce bien bénéficie d’une situation idéale, à distance de marche du village d’Onnion qui dispose d’une supérette, d’une boulangerie, d’écoles et d’une piscine. La commune de Saint-Jeoire se trouve à 5 km, avec écoles, commerces, restaurants et services. L’accès au ski est facile avec le domaine des Brasses, accessible à pied ou en 3 minutes en voiture, ainsi que Sommand / Praz de Lys à 20 minutes. Des domaines plus vastes tels que les Portes du Soleil ou Flaine sont à environ 35 minutes. L’aéroport de Genève est à 45 minutes en voiture et l’autoroute A40 à seulement 15 minutes.

Chaque lot sera équipé de :

- Une porte d’entrée
- Un interphone avec combiné permettant l’ouverture de la porte d’entrée de l’immeuble
- Des fenêtres et portes extérieures neuves ou rénovées, toutes équipées de volets roulants électriques (sauf fenêtres de salle de bains et ouvertures du deuxième étage)
- Les évacuations nécessaires aux réseaux
- Une arrivée d’eau avec compteur situé dans les parties communes
- Un raccordement électrique avec coffret et compteur Linky
- Une connexion fibre optique prévue pour le second semestre 2026
- Un escalier en bois pour les neuf appartements en duplex du deuxième étage (la finition de l’escalier restant à la charge du propriétaire)
- Un plan d’aménagement intérieur indicatif remis à chaque acquéreur

Quelle que soit l’option choisie, appartement en état brut ou livré terminé, ce projet offre aux futurs acquéreurs des solutions pour adapter l’agencement ou personnaliser chaque logement :

- Aménagement d’un espace de rangement
- Rénovation de la salle de bains
- Transformation d’un T3 en grand T2
- WC séparés ou intégrés à la salle de bains
- Modification de la cuisine, des chambres, etc.

Le bien est soumis au statut de la copropriété.

Lire la suite

Faites une visite virtuelle


Autres appartements de la résidence

...

LE QUARTIER de cet appartement

...

Vu récemment

...

Les informations sur les risques auxquels ce bien est exposé sont disponibles sur le site Géorisques : www.georisques.gouv.fr

Diagnostic de performance énergétiques (DPE)
logement très performant
consommation (énergie primaire)
0
kWh/㎡.an
émissions
0
kg CO2/
㎡.an
logement extrêmement consommateur d'énergie
passoire énergétique
Dont émissions de gaz à effet de serre
peu d'émissions de CO2
0 kg CO2/㎡.an
émissions de de CO2 trés importantes

Partager La Clef des Champs, Appt. A2