Chalet Chouca - Chalet Chouca - Chalet Chouca -
Plus de photos
Chalet Chouca
1 290 000 €
Visite Virtuelle

Ce site est protégé par reCAPTCHA Enterprise et les règles de confidentialité et les conditions d'utilisation de Google s'appliquent.

Un superbe chalet familial avec énormément d’espace, un jardin privatif et de magnifiques vues sur les montagnes.

Manu Maclean - Claire Williams agents d’Alpine Property pour Chamonix & Valley

En bref

Chalet Chouca

Prix
1 290 000 €uros
Statut
A VENDRE
Dernière mise à jour
31/12/2025
Région
Mont Blanc
Localité
Chamonix & Vallée
Village
Les Houches
Chambres
4
Salles de bain
4
Surface
225 m²
Surface du terrain
700 m²
Indépendant(e)
Oui
Chauffage
Chauffage mixte
Cheminée
Poêle à bois
Accès aux pistes
Navette
Pistes les plus proches
2 km
Commerces les plus proches
700 m
Jardin
Oui
Garage
Double
Drainage
Tout-à-l'égout
Honoraires de l'agence
A la charge du vendeur

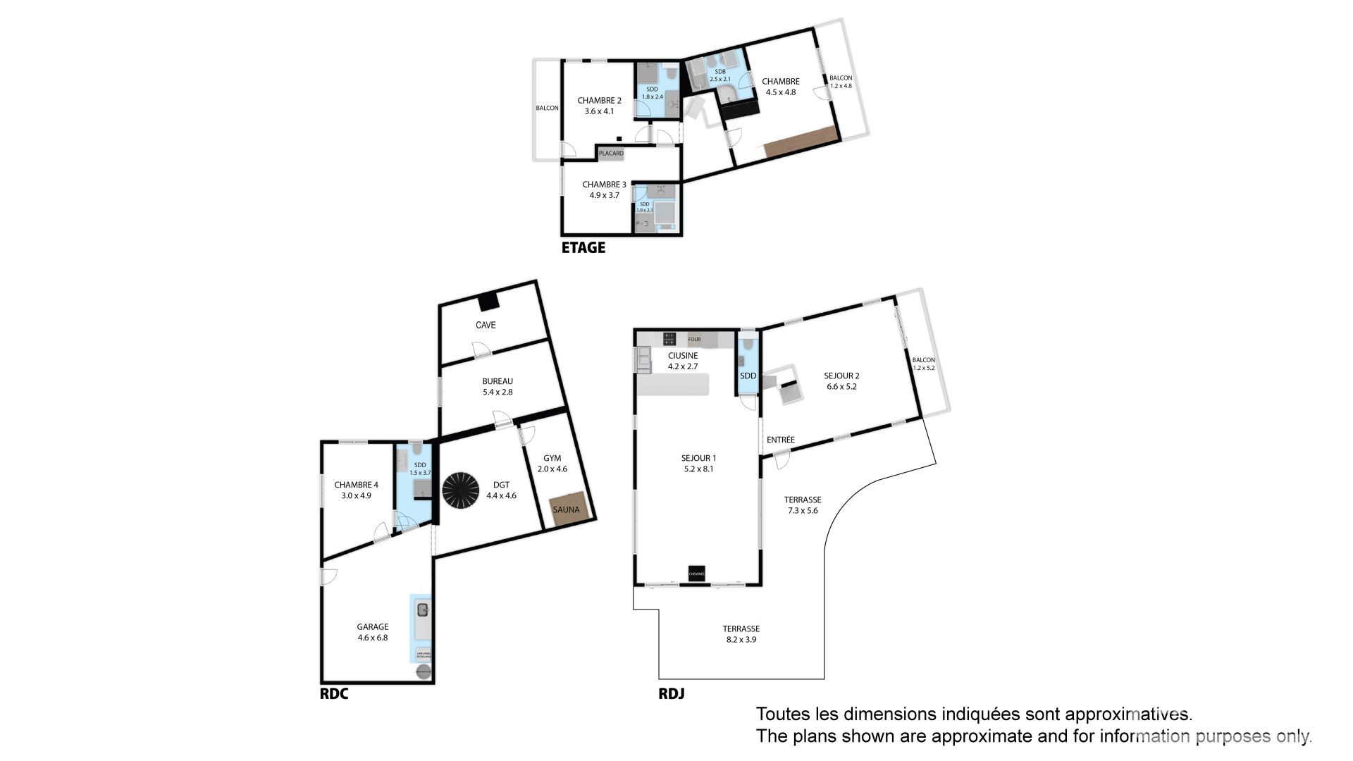
Description

Le Chalet Chouca se situe dans le quartier de St. Antoine, au sein de la station de ski et du village des Houches, à courte distance de marche des commerces locaux, restaurants et transports publics. L’aéroport de Genève est à environ une heure de route.

Construit en 2007, le chalet est récent et se trouve en très bon état général, offrant de beaux volumes répartis sur trois niveaux, avec une grande flexibilité d’aménagement, de nombreux rangements, ainsi que plusieurs espaces de vie variés et agréables.

Il se compose comme suit :

Niveau jardin : entrée donnant sur un second salon avec balcon exposé sud, WC invités, cuisine ouverte entièrement équipée donnant sur l’espace repas et sur un salon principal cathédrale (hauteur sous plafond), largement ouvert grâce à de nombreuses baies vitrées offrant des vues sur les pistes de ski, avec accès direct à une grande terrasse en bois et à un jardin privatif exposé ouest. Un poêle à bois a été installé en 2025 pour renforcer l’ambiance lors des douces soirées d’hiver.

**Niveau supérieur :
chambre parentale exposée sud avec balcon et salle de bains attenante (en suite) comprenant baignoire et douche, deux chambres supplémentaires avec salles d’eau en suite (douches), dont une avec balcon orienté nord-ouest.

**Niveau inférieur :
espace détente, salle de sport avec sauna, bureau, local de rangement, double garage, et quatrième chambre double avec salle d’eau en suite.**

Parking extérieur pour plusieurs véhicules.

Chauffage central et eau chaude : gaz de ville (gaz communal).

Lire la suite

Faites une visite virtuelle

Diagnostic de performance énergétiques (DPE)

Diagnostic de performance énergétiques (DPE)

d

Indice d'émission de gaz à effet de serre (GES)

c
Voir le détail

LE QUARTIER de ce chalet

...

Vu récemment

...

Les informations sur les risques auxquels ce bien est exposé sont disponibles sur le site Géorisques : www.georisques.gouv.fr

Diagnostic de performance énergétiques (DPE)
logement très performant
consommation (énergie primaire)
205
kWh/㎡.an
émissions
27
kg CO2/
㎡.an
logement extrêmement consommateur d'énergie
passoire énergétique
Dont émissions de gaz à effet de serre
peu d'émissions de CO2
27 kg CO2/㎡.an
émissions de de CO2 trés importantes

Partager Chalet Chouca