Ce site est protégé par reCAPTCHA Enterprise et les règles de confidentialité et les conditions d'utilisation de Google s'appliquent.


Formidable opportunité d’acquérir un bien neuf de bon standing aux Carroz dans un secteur calme, ensoleillé avec une vue dégagée sur les montagnes
Aude Garnier - Maxime Bruneau agents d’Alpine Property pour Les CarrozEn bref
Appt. Alpaga, C302
- Prix
- 809 000 €uros
- Statut
- A VENDRE
- Dernière mise à jour
- 27/07/2025
- Région
- Grand Massif
- Localité
- Flaine & Les Carroz
- Village
- Les Carroz d`Araches
- Chambres
- 4
- Salles de bain
- 2
- Surface
- 146.4 m²
- Accès aux pistes
- Navette
- Pistes les plus proches
- 1 km
- Commerces les plus proches
- 300 m
- Garage
- Simple
- Drainage
- Tout-à-l'égout
- Nombre de Lots
- 29
- Procédure en cours
- Non
- Honoraires de l'agence
- A la charge du vendeur
Emplacement
Rechercher sur la carteDescription
Bienvenue à la résidence Alpaga située à l’entrée des Carroz dans le quartier du Lays. Le centre du village y est accessible en 15 min à pieds et un petit supermarché à 5 min.
Cet ensemble comprend 3 bâtiments de type chalet, le A et B étant déjà livrés et le C en cours de commercialisation.
Avec son esprit montagne, l’Alpaga répond aux meilleurs standards d’économie d’énergie et de confort, notamment avec le respect de la norme RT2012 ainsi que de la règlementation acoustique.
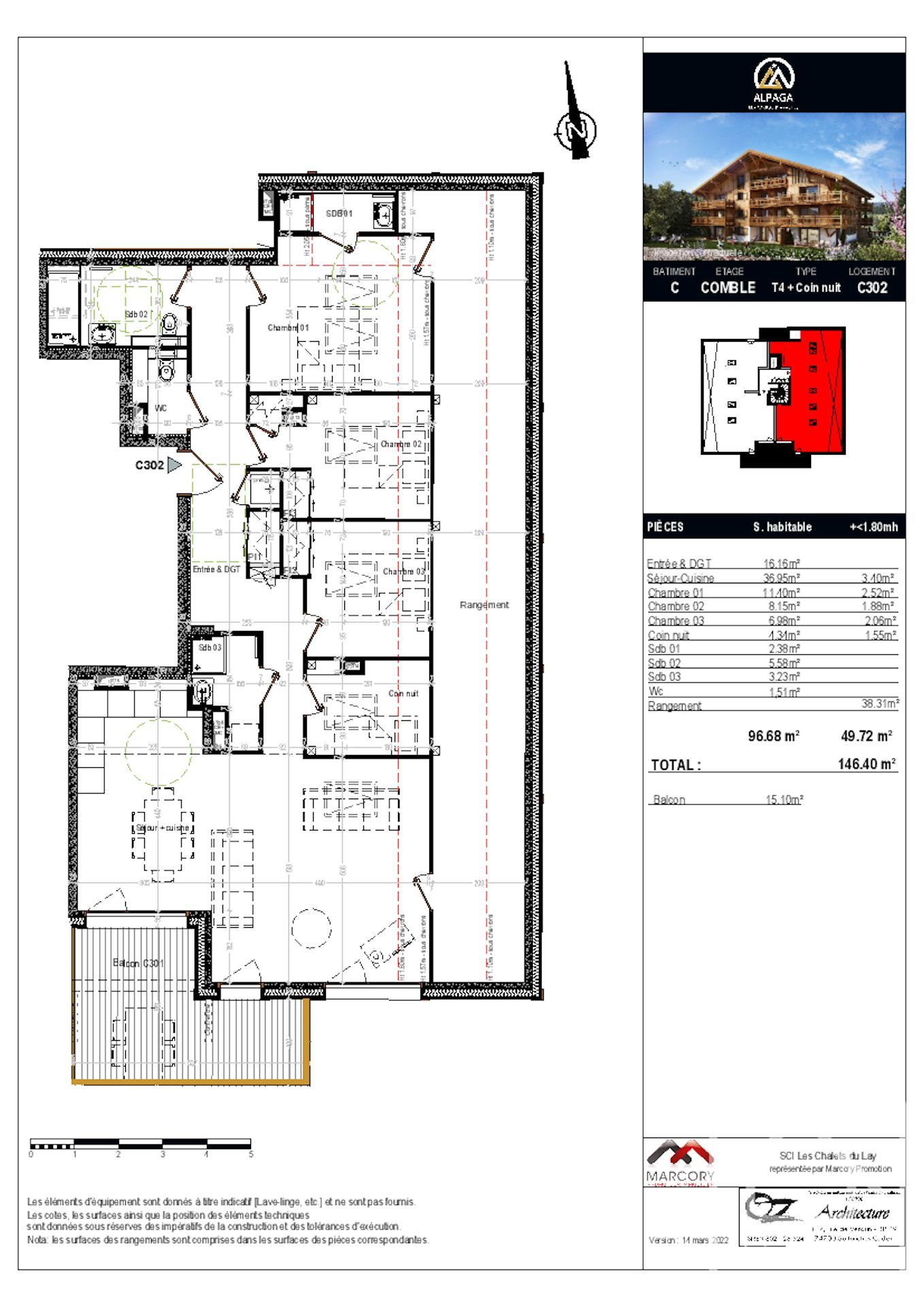
Le bâtiment C est sur sous-sol et composé de 13 appartements répartis sur 3 étages.
Concernant les logements, de grandes baies vitrées ont été prévues pour laisser entrer un maximum de lumière.
L’entrée, dégagement, cellier et chambres seront équipés de parquets stratifiés. Salle de bain et WC de carrelage grès cérame 60x60cm.
La cuisine sera dotée d’électroménager Bosch comprenant: réfrigérateur et congélateur combinés, lave-vaisselle, four, hotte aspirante à recyclage, plaque de cuisson induction 4 feux.
Voici d’autres prestations: menuiseries extérieures en bois avec des volets roulants aluminium, portes intérieurs en bois, WC suspendu, vidéophonie, ascenseur, local vélo commun.
Pour finir chaque appartement disposera du chauffage au sol avec sa propre chaudière à gaz à condensation et possèdera une place de stationnement privative en sous-sol, une cave et un casier à skis.
L’appartement C302 est un spacieux T4 + cabine de 146,40 m² (dont 96,68 m² loi Carrez) situé au 3ème et dernier étage, sous les combles.
Il se compose de la manière suivante : une entrée avec des rangements intégrés et un dégagement distribuent les différentes pièces.
Le côté Nord sert à la partie « nuit » avec les 4 chambres (dont une ensuite), une salle de bain et un WC indépendant..
Enfin, dans la partie sud, on trouve la généreuse pièce de vie avec séjour et cuisine. De là, on accède au balcon d’environ 15,10 m² orienté Sud-Est.
Toutes les garanties nécessaires sont en place pour protéger votre investissement.
Comme il s’agit d’une construction neuve, les frais de Notaire sont réduits (2,5 %).
Le bien est soumis au statut de la copropriété.